课 程 介 绍
学习时长:全日制班2个月、3个月
课程内容:CAD+3D/VR/PS+720全景,学会画一套完整的施工图和效果图 ;SketchUp草图、酷家乐。
学习模式:理论+工地实践+动手操作
学习目的:包教包会学会为止、没有学会免费继续学习
学校地址:长沙市雨花区香樟路云集国际大厦11楼(公交站牌:樟树屋站)

软件套餐一:CAD施工图+3DMAX效果图
(学习时长2个月)
一、CAD施工图(1个月)
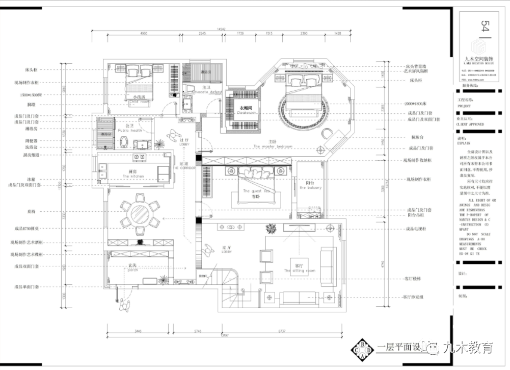
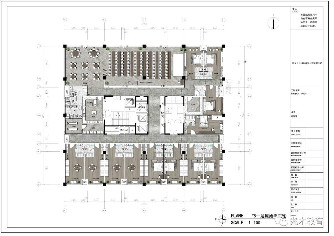
1、施工图平面基础课
学习CAD软件安装及软件设置,软件界面功能讲解、常用制图命令讲解,制图线型设置及打印设置,图纸规划的重要性、量房注意事项,人体工程学讲解,平面布置图画法及设计时的要点;介绍建筑相关知识(高层与小高层的结构、墙体厚度、房屋户型结构等)。

2、施工图深化设计
通过立面图示范,讲解施工工艺、结构图的画法以及材料用途、材质标法、制图规范要求、电视背景立面图、沙发背景立面图、床头背景立面图、端景台立面图、鞋柜立面图、隔断立面图、衣柜立面图等辅导练习,点评设计以及制图规范,造型更正(考虑是否符合施工规范);剖面图、大样图、节点图、侧面图讲解等图纸学习,进一步结合工地施工现场,进行指导性施工及设计方案的实施落地。

二、3DMAX效果图(1个月)
1、3DMax基础课
◆主要是对我们要学的内容以及学习目标进行讲解,讲解制作效果图的正规流程及注意事项,3D常用版本、安装方法及对电脑配置要求等。
◆对3DMAX常用快捷键的讲解、用途及注意事项,上机辅导熟悉快捷键,单体建模练习。熟悉3DMAX操作界面,制图空间,工具面板的讲解,制作效果图前对软件的设置及上机辅导。

2、3DMax 室内高级建模
学习室内高级建模(全面提高室内外的模型制作要求水平,熟练掌握室内外各个空间中的造型及家具的制作方法,使原理与实操相结合,让学生以最快和最轻松的方法完成各种模型)。

3、3DMax 室内高级渲染
学习室内高级渲染VRay(通过VR课程的学习,熟练掌握VR常用的操作与技术应用,并具备相应的VR技术高级室内外效果图的出图能力)。

4、3DMax 室内PS后期处理
主要学习PS效果图后期(对渲染出的效果图进行分析,利用PS后期处理技术,使MAX渲染出的效果图更加真实有质感,对处理中应用的图层蒙板、颜色模式、图像调整,滤镜效果等的要点、难点进行剖析)。

软件套餐二:CAD+3DMAX/VR/PS+720全景+SU草图+酷家乐
(学习时长3个月)
一、CAD施工图(1个月)
1、施工图平面基础课
学习CAD软件安装及软件设置,软件界面功能讲解、常用制图命令讲解,制图线型设置及打印设置,图纸规划的重要性、量房注意事项,人体工程学讲解,平面布置图画法及设计时的要点;介绍建筑相关知识(高层与小高层的结构、墙体厚度、房屋户型结构等)。

2、施工图深化设计
通过立面图示范,讲解施工工艺、结构图的画法以及材料用途、材质标法、制图规范要求、电视背景立面图、沙发背景立面图、床头背景立面图、端景台立面图、鞋柜立面图、隔断立面图、衣柜立面图等辅导练习,点评设计以及制图规范,造型更正(考虑是否符合施工规范);剖面图、大样图、节点图、侧面图讲解等图纸学习,进一步结合工地施工现场,进行指导性施工及设计方案的实施落地。

二、3DMAX效果图(1个月)
1、3DMax基础课
◆主要是对我们要学的内容以及学习目标进行讲解,讲解制作效果图的正规流程及注意事项,3D常用版本、安装方法及对电脑配置要求等。
◆对3DMAX常用快捷键的讲解、用途及注意事项,上机辅导熟悉快捷键,单体建模练习。熟悉3DMAX操作界面,制图空间,工具面板的讲解,制作效果图前对软件的设置及上机辅导。

2、3DMax 室内高级建模
学习室内高级建模(全面提高室内外的模型制作要求水平,熟练掌握室内外各个空间中的造型及家具的制作方法,使原理与实操相结合,让学生以最快和最轻松的方法完成各种模型)。

3、3DMax 室内高级渲染
学习室内高级渲染VRay(通过VR课程的学习,熟练掌握VR常用的操作与技术应用,并具备相应的VR技术高级室内外效果图的出图能力)。

4、3DMax 室内PS后期处理
主要学习PS效果图后期(对渲染出的效果图进行分析,利用PS后期处理技术,使MAX渲染出的效果图更加真实有质感,对处理中应用的图层蒙板、颜色模式、图像调整,滤镜效果等的要点、难点进行剖析)。

三、720全景效果图(1周)
熟练掌握3DMAX软件的同时,更好的应用色彩学的搭配,家具陈设的搭配,后经过PS后期的处理,再用全景后期制作,背景音乐插入,让效果更真实。
四、SketchUp草图(2周)
熟悉SU版本的介绍、软件的概述及安装、卸载。能熟练掌握软件的基本应用、属性、基本操作、绘图工具、绘图辅助、材质、物件、渲染参数、材质编辑贴图、及灯光等知识点。能更好的绘制三维立体室内空间,快速表达室内空间效果,色彩搭配,家具陈设搭配等家装设计,以及园林规划、景观庭院草图效果表达。
五、酷家乐效果图(1周)
了解酷家乐软件的优势特点的概述及适合人群、软件下载安装、软件面板的讲解。需要熟练掌握软件的操作,绘制三维立体室内空间,顶面,墙面,地面设计,全屋定制等快速表达室内空间效果,色彩搭配,家具陈设搭配。

T H E E N D
